Первичная обмотка трансформатора — 180 витков медного провода сечением 5 мм2 — подключена к сети переменного тока напряжением 220 В. В момент замыкания контактов ток в первичной обмотке достигает 30 А. В цепи первичной обмотки стоит пакетный переключатель ПВ-210а12. Вторичная обмотка — 4,5 витка набора медных проводов с общим сечением 180 мм2. Выходное напряжение — 5 В.
Если в промышленном аппарате ток регулируют механизмом переключения, сложным в изготовлении, то здесь — медной перемычкой и балансными сопротивлениями. Медная перемычка, соединяющая линию, дает максимальный ток. Иными словами, ее ставят тогда, когда сваривают толстолистовой материал.
А для сварки тонколистовых деталей перемычку снимают и на ее место ставят балансное сопротивление: нихромовую проволоку ∅3—4 мм. Каждой толщине свариваемого металла соответствует определенной длины балансное сопротивление.
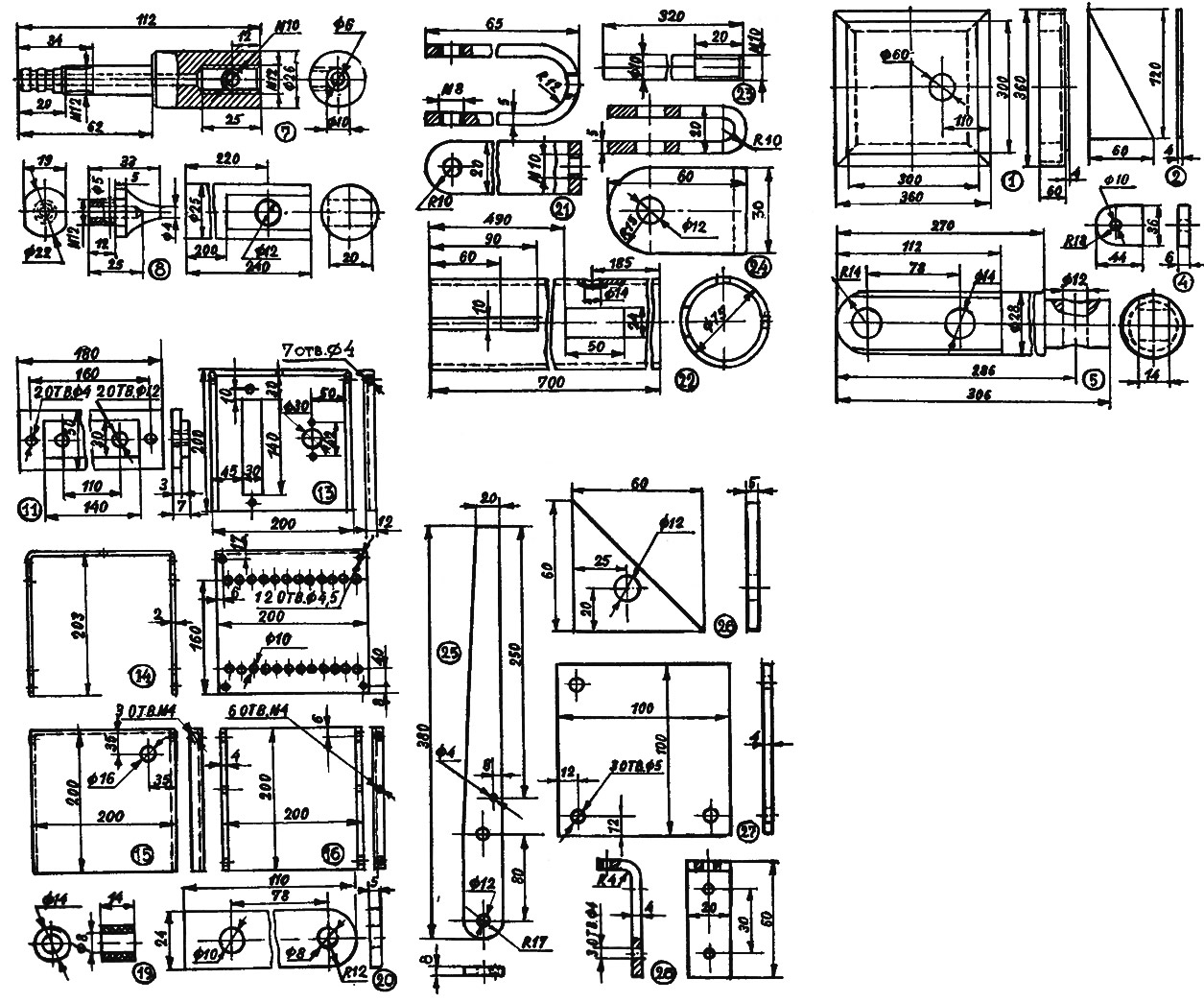
Аппарат состоит из основания 1 (рамы и плиты), к которому приварена стойка 22 с четырьмя косынками. Две из них — 26 — приварены параллельно друг к другу на расстоянии 10 мм, остальные — 2 — под углом 90°. Внутри стойки находится зажимное устройство. Оно включает в себя педаль 25, вилки 21 и 24 и тягу 23, которая под воздействием пружины 3 возвращается в исходное положение. Трансформатор 16, собранный из Ш-образного железа с сечением сердечника 42 см2, крепится к швеллерам 17, а они — к площадке 18. Трансформатор закрыт кожухом 14 и стенками 13 и 15. Окно стенки 13 закрыто текстолитовой платой 11, медная перемычка или балансное сопротивление 10 зажимается болтовым соединением.
В отличие от промышленного здесь подвижен не верхний, а нижний рычаг зажимных клещей. Значит, и подросток сможет надежно фиксировать точку сваривания.
Зажимные клещи состоят из рычага 9, приваренного к стойке, и рычага 5, закрепленного на оси между двумя ушками 4. Рычаг 5 изолирован от корпуса текстолитовой прокладкой 20 и втулкой 19.
К упорам 7 подводятся наконечники кабеля 6. Контакты 8 сделаны из красной меди, они ввернуты в упоры, внутри которых просверлены каналы для водяного охлаждения.
Несколько слов о контактах. Их наконечник имеет диаметр 4 мм, благодаря чему достигается большая прочность сварного шва — диаметр свариваемого участка равняется 6 мм. Этого вполне хватает для прочного соединения пластин общей толщиной до 5,0 мм.
Вес аппарата — 30 кг, высота — 960 мм, длина и ширина основания — 460 мм, мощность почти такая же, как и у промышленных образцов — 6 кВт.
В заключение об авторах. Аппарат создали ученики восьмого класса Миша Гладилин, Саша Журавлев, Володя Мамонов, Игорь Егоров и Валерий Вырва в подмосковном городе Люберцы под руководством учителя труда Николая Ильича Шевченко.
Журнал «САМ» №5, 1995 год




