Конструируя машину, я старался предусмотреть максимум удобств. Пришлось, в частности, приделать даже ремень с карабинами, чтобы переносить ее через препятствия.
Мотоцикл снабжен большим багажником и вместительным инструментальным ящиком. Амортизаторы на обоих колесах значительно снижают утомление при дальних поездках. Это подтвердилось, кстати сказать, во время пробегов по маршруту Москва — Смоленск — Минск — Вильнюс — Рига — Таллинн — Ленинград и в ходе повседневной эксплуатации. Машина продемонстрировала хорошую устойчивость, высокую приемистость и безотказно справлялась со всеми трудностями пути.
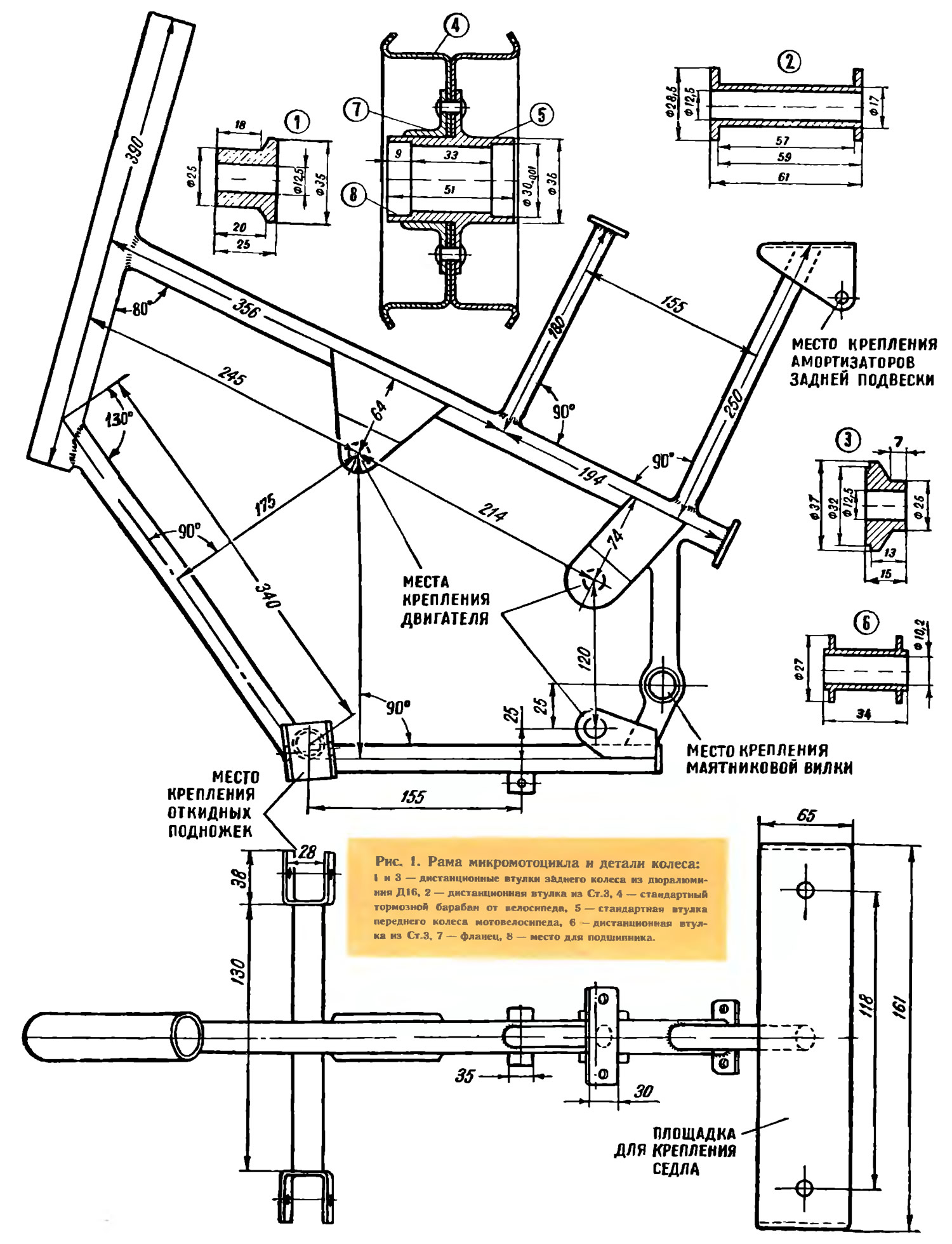
РАМА изготовлена из тонкостенных трубок ∅27X1 мм (рис. 1). Пригодны части от велосипедной рамы, сваренные, как показано на чертеже.
ПЕРЕДНЯЯ ВИЛКА с амортизаторами (рис. 2) — от велосипеда 16-В. Внесены следующие изменения. До размеров, указанных на чертеже, отпиливаются левая и правая половины, затем рычаги маятников устанавливаются на колесо и закрепляются гайками. Из стали шириной 40 мм и толщиной 3 мм вырезается полоска, и ею обжимаются концы вилки. После этого концы вилки привариваются к полоске-основанию. Амортизаторы при переделке снимать не надо.
ЗАДНЯЯ ВИЛКА (рис. 3) с амортизаторами — от мотоцикла «Ява». Можно использовать этот узел от мопеда «Рига». На чертеже показано, какую часть рамы необходимо выпилить из старой рамы серийного мотоцикла и вварить в раму моей самоделки.
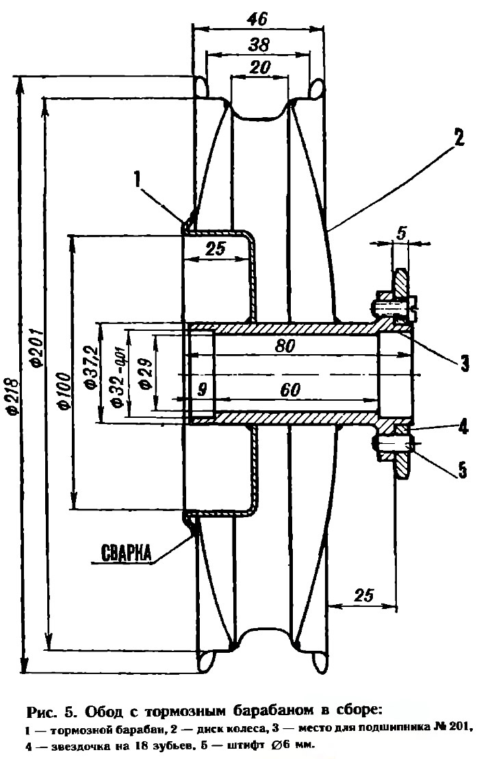
ОБОДЬЯ И ДИСКИ КОЛЕС (рис. 5 и 6). Самодельные покрышки, установленные на моей машине, в 1,5 раза шире, чем обычно применяемые в подобных машинах покрышки от самокатов. Поэтому ширина ободьев между буртиками составляет 38 мм. Посадочные же размеры стандартные. Ободья изготовлены из колеса мопеда «Рига» на оправке (рис. 4).
ДВИГАТЕЛЬ устанавливается на раму после ряда переделок: удаляются педали и ставится кикстартер (рис. 7, 8).
На собранном двигателе ножовкой отпиливается бобышка правой половины картера, через которую проходит вал шатунов. Высота сохранившейся части бобышки должна составить 3 мм, а на валу остается риска. Далее двигатель разбирается, разъединяются половинки картера и извлекается вал шатунов, отжигается место риски и «излишек» отпиливается. На бобышку правой половины картера ставится заглушка из дюралюминиевой пластины толщиной 3 мм с прокладкой из прессшпана. Затем обрезается и ставится на место тормозная втулка, на валу шатунов делается паз под пружину кикстартера от мотоцикла К-125 и двигатель с кикстартером собирается.
РУЛЬ — от мопеда «Рига», укорочен до 500 мм, все его части стандартные.
ТОРМОЗНЫЕ КОЛОДКИ и барабаны — от переднего колеса велосипеда 16-В.
СТОП-СИГНАЛ — от автомобиля М-20, выключатель его — от мотороллера ВП-150.
| Вес (сухой), кг | 27 |
| Двигатель Ш-52, л. с. | 2,0 |
| Габаритные размеры, мм | |
| длина | 1100 |
| ширина | 500 |
| высота | 900 |
| Клиренс, мм | 150 |
| Максимальная скорость, км/ч | 65 |
Наш комментарий. Микромотоцикл В. Петровского прост в изготовлении и оставляет простор для дальнейшей работы любителям конструирования, которые захотят повторить его. Хотелось бы подчеркнуть также еще одну особенность машины: она бегает на шинах, изготовленных ее конструктором в домашней мастерской. И шины эти очень высокого качества.
Журнал «САМ» №1, 1992 год









